Bauarten von Stahlgelenkketten

Stahlgelenkketten sind im Gegensatz zu Rundstahlketten nur in einer Dimension beweglich. Sie werden überwiegend als Antriebs- und Förderketten eingesetzt, aber auch zur Übernahme von ruhenden oder schwellenden Lasten, als Transport- und auch als Getriebeketten zur Leistungsübertragung. Sie bieten die Möglichkeit der schlupflosen Leistungsübertragung bei gleichzeitiger Vermeidung von Biegebeanspruchung durch die Gelenkigkeit.

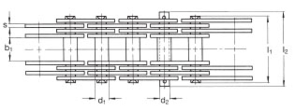
3 Abmessungen definieren die Stahlgelenkketten:

Teilung
Die innere Länge eines Kettengliedes, d.h. das Maß von Mitte Bolzen bis Mitte Bolzen

Rollen-, Buchsen- oder Bolzendurchmesser
Das Außenmaß der Rundteile zwischen den Innenlaschen

Innere Breite
Abstand zwischen den Innenlaschen (wird auch lichte Weite genannt)

Stahlgelenkketten setzen sich aus Bauteilen zusammen, die entweder der Übertragung von Zugkräften dienen oder die relative Drehung zweier Glieder zueinander ermöglichen. Das Innen- und Außenglied bildet dabei das Gelenk der Stahlgelenkkette. Die Gelenkfläche errechnet sich durch die Projektion des Bolzens auf die Tragfläche des Innengliedes.

Grundsätzlich lassen sich Stahlgelenkketten in fünf verschieden Typen einteilen: Bolzenketten, Buchsenketten, Rollenketten, Zahnketten und Sonderketten. Diese fünf Gruppen lassen sich weiter unterteilen in eine Vielzahl genormter und nicht genormter Stahlgelenkketten.

/onecol/cms/305/stahlgelenkkette1.jpg

Bolzenketten

Bolzenketten stellen die einfachste Bauart der Stahlgelenkketten dar. Die Laschen drehen sich direkt auf den Bolzen. Die Gelenkfläche ist damit entsprechend klein. Zu den Bolzenketten gehören die Gallketten, Fleyerketten und vielfach Ziehbankketten. Bolzenketten werden meist als Last- und Transportketten eingesetzt.

/onecol/cms/21/buchsenketten.jpg

Buchsenketten

Buchsenketten unterscheiden sich von den Bolzenketten dadurch, dass die Innenlaschen auf eine Buchse gepresst sind, die mit einem Laufsitz auf den Bolzen geschoben ist. Die Gelenkfläche ist damit größer als die der Bolzenketten. Daraus ergibt sich eine geringere Pressung im Gelenk, was wiederum zu einer größeren Verschleißfestigkeit führt. Buchsenketten werden als Last- und Förderketten, üblicherweise in langsam laufenden Trieben, eingesetzt.

/onecol/cms/24/rollenketten.jpg

Rollenketten

Rollenketten unterscheiden sich von Buchsenketten durch eine über die Buchse gesteckte Schonrolle, die dazu dient, den Verschleiß zwischen Buchsen und Kettenradzähnen zu verringern. Die Rolle vermeidet die gleitende Reibung zwischen Kette und Kettenradzahn. Die Gelenkfläche ist jedoch etwas kleiner als die der Buchsenketten. Rollenketten haben eine breite Verwendungsmöglichkeit als Last-, Steuer- und Getriebeketten. Eine der Rollenkette ähnliche Ausführung der Stahlgelenkkette ist die Rotarykette, die aus gekröpften Laschen besteht und damit eine größere Elastizität aufweist. Die Rotaryketten werden in schweren Getrieben, die stoßartigen Belastungen ausgesetzt sind, eingesetzt.

/onecol/cms/147/zahnketten.jpg

Zahnketten

Zahnketten übertragen die Kraft zwischen Kette und Kettenrad über die besondere Form der Laschen, nicht, wie bei den bisher genannten Ketten, über Bolzen, Buchsen oder Rollen. Insofern weisen die Zahnketten einen grundsätzlich anderen Aufbau auf. Zur Führung der Zahnketten quer zur Längsrichtung werden in die Mitte (Innenführung) oder an die Seiten der Kette (Außenführung) Führungslaschen eingelegt. Zahnketten haben eine kleinere Gelenkfläche und eine kleinere Bruchlast als Rollenketten.